INHNI

Réalisation du CFA – La  Maison des métiers de la propreté INHNI Ouest

Réalisation du CFA – La  Maison des métiers de la propreté

Lieu Campus de Ker Lann, Bruz (35)

Maîtrise d’ouvrage INHNI Ouest

Performance énergétique RT2012 + panneaux thermovoltaïques (production air chaud et électricité)

Coût des travaux 3,811M€HT

SHAB 1841 m²

Co-traitants PEROBA économiste, FLUELEC Fluides, Thermique, ARES CONCEPT Structure, EXE OPC, CBI réseaux

Mission de base Loi MOP

Calendrier Livré en 2020

Crédit photos INTERVAL Photo

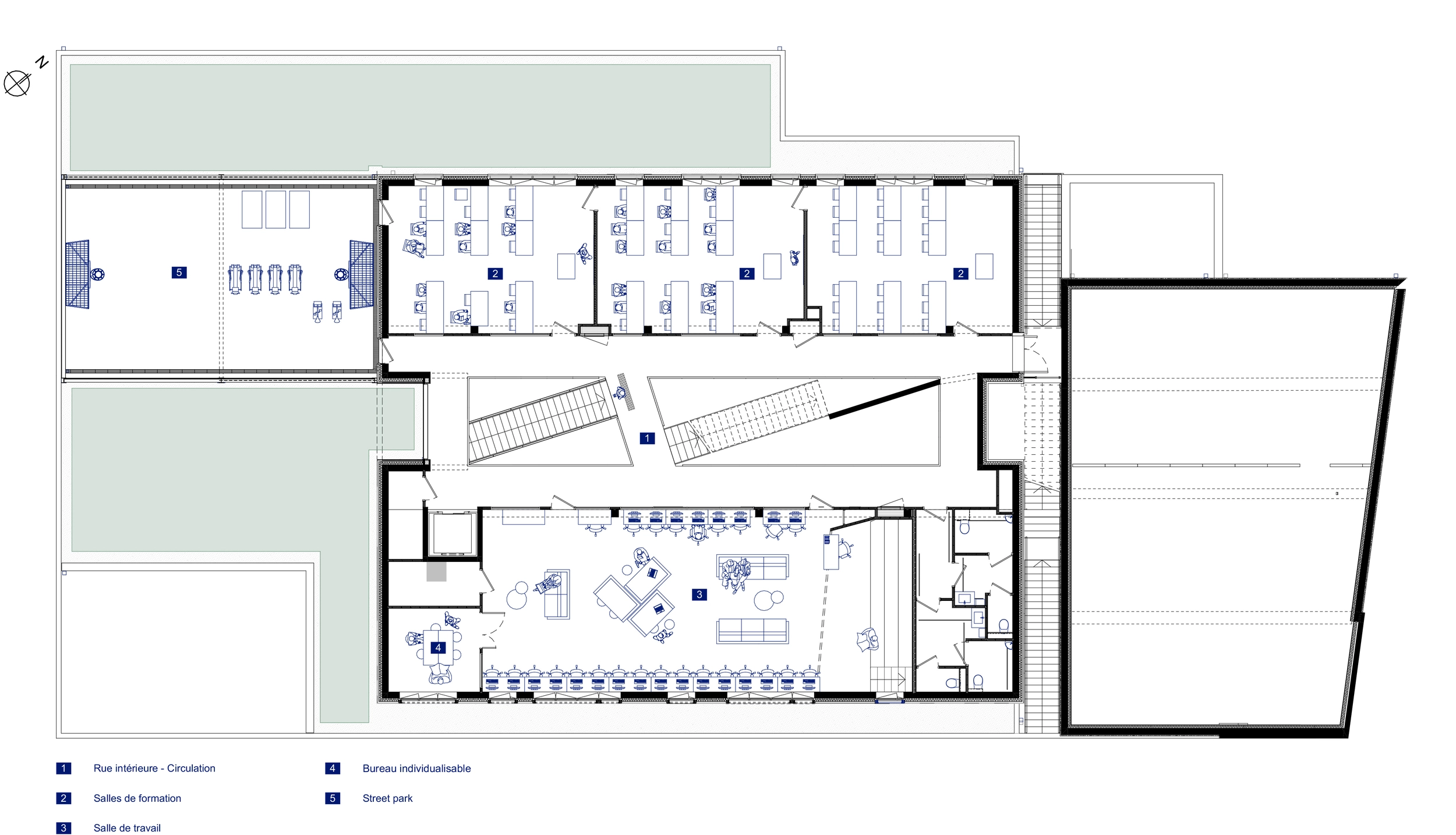
Sur un socle en béton blanc, s’installent deux niveaux destinés à l’enseignement. Les étages se divisent en deux ailes s’articulant autour d’un atrium. Celui-ci garantit un apport en lumière au centre du bâtiment et devient un véritable lieu de vie et de communication entre les espaces de formation.

Les façades des étages sont bardées de lames métalliques en deux teintes qui font vibrer le bâtiment sous la lumière du soleil. Elles intègrent également des éléments architecturaux et techniques qui participent à la qualité du bâtiment, tels que les volets papillons pour moduler les apports solaires.

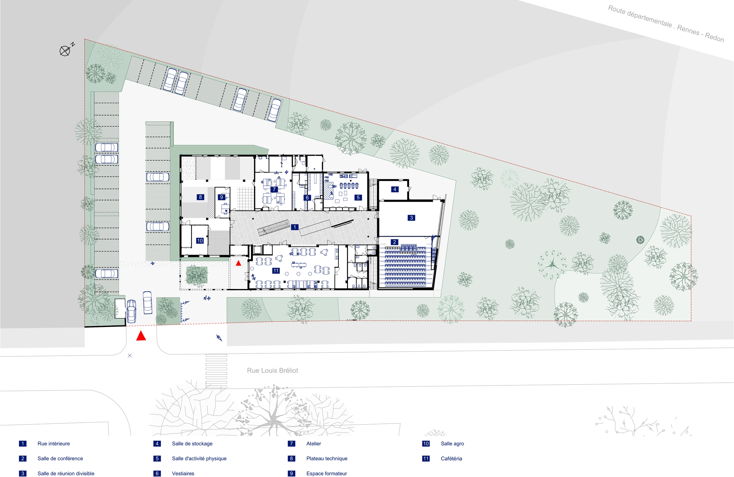
Contraintes spécifiques : insertion du projet sur une parcelle complexe de forme triangulaire et située entre la rue Louis Blériot et la voie rapide Rennes / Redon. 

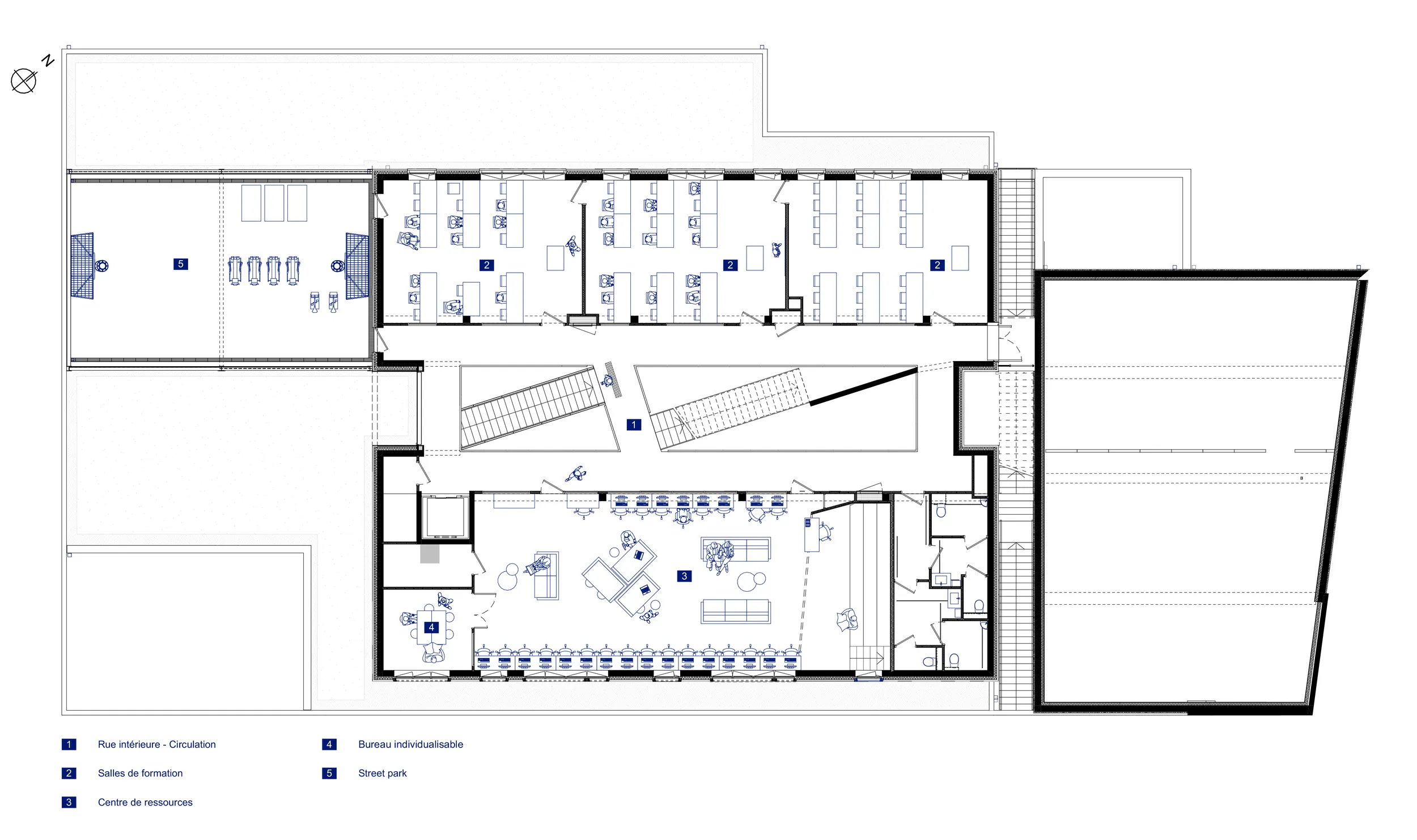
RDC paysager
1.Rue intérieure
1er Étage - enseignement théorique
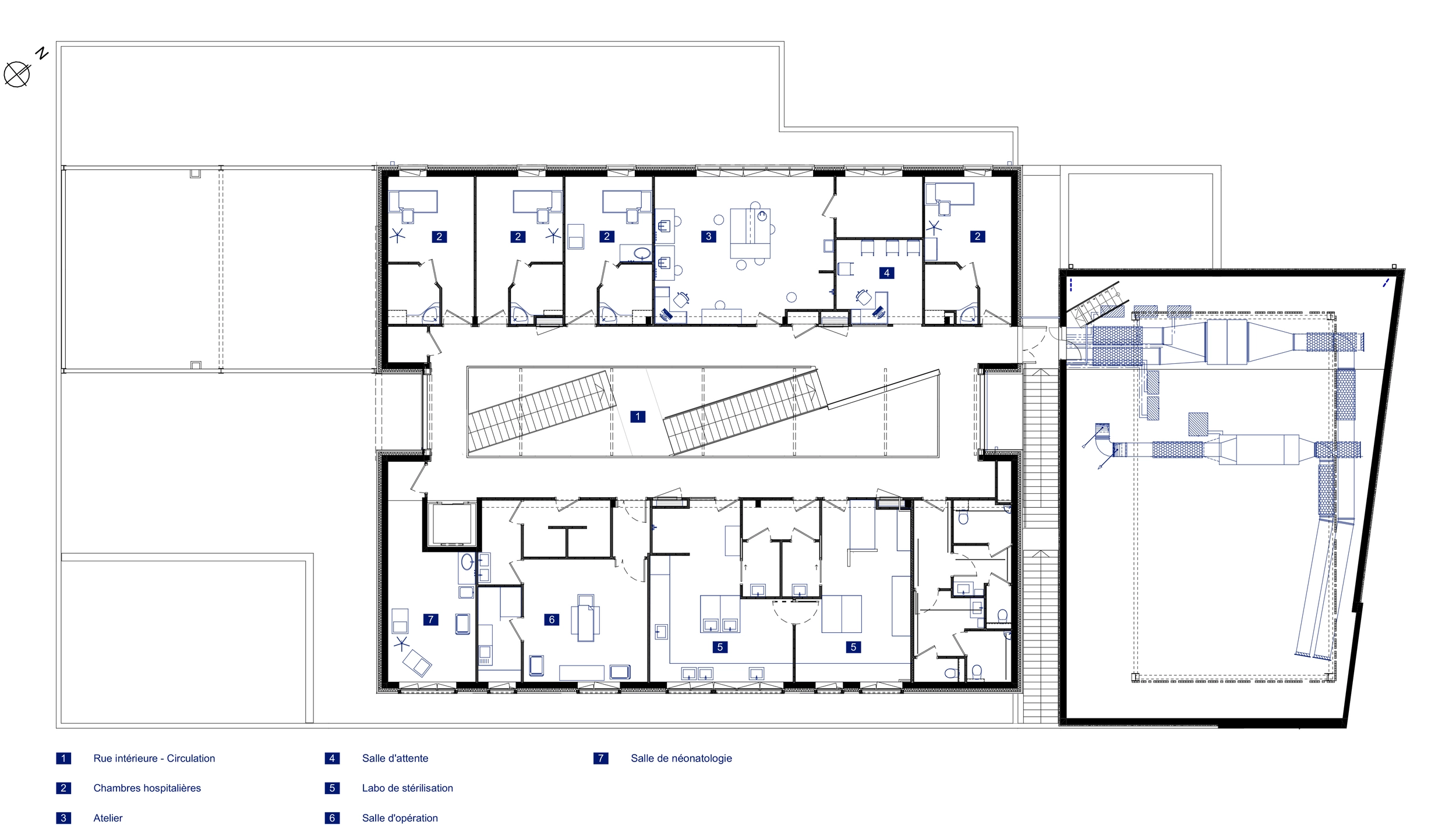
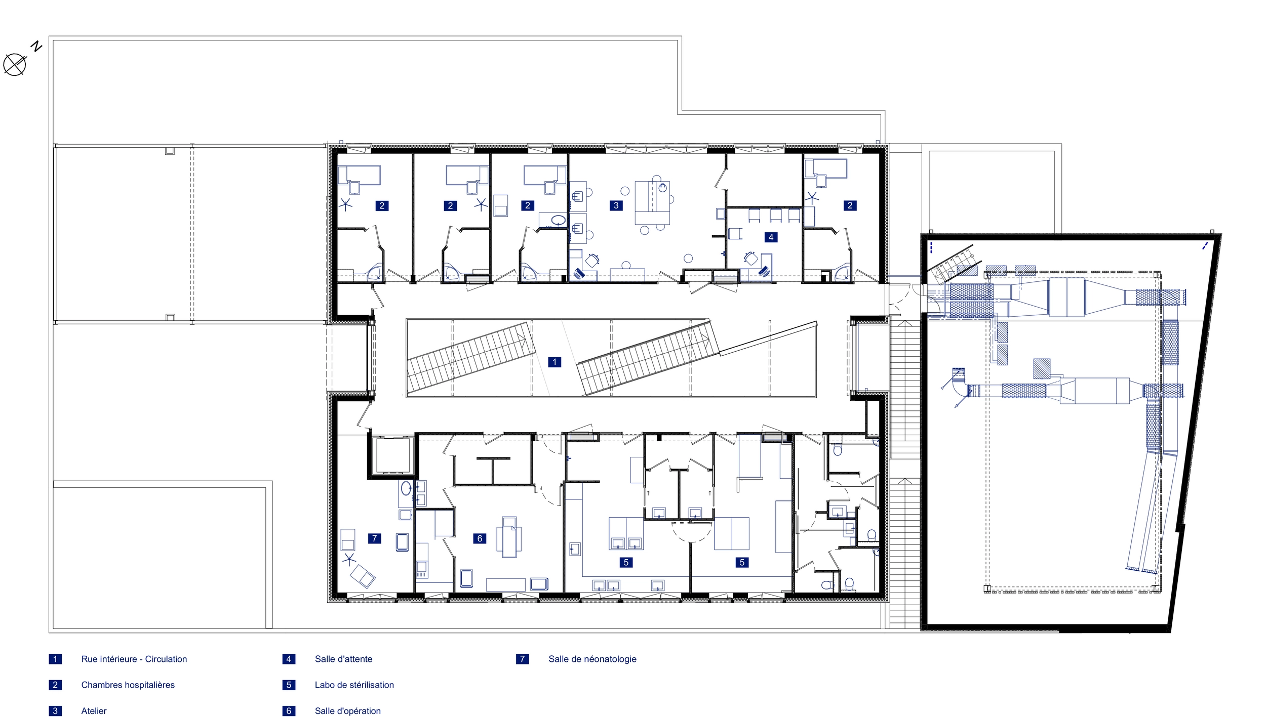
2e Étage hospitalier - enseignement pratique
Coupe longitudinale
1.Rue intérieure
3.Salle de travail, informatique
5.Street park