MODELLI

Réalisation de 20 logements collectifs locatifs sociaux

Maîtrise d’ouvrage ARCHIPEL HABITAT

Lieu ZAC Madeleine, rue de Nantes à Rennes (35)

Gabarit R+5 / stationnement aérien

Performance énergétique RE2020

Label NF HQE

Coût des travaux 2,81M€HT

SHAB 1 219m²

Co-traitants O+P ARCHITECTES, ARBATT Economiste et EXE/OPC, ARES CONCEPT Structure, THALEM INGENIERIE Thermique, Fluides, REFLEX ACOUSTIQUE Acoustique, ATELIER KER ANNA paysagiste

Mission de base Loi MOP

Calendrier Chantier en cours

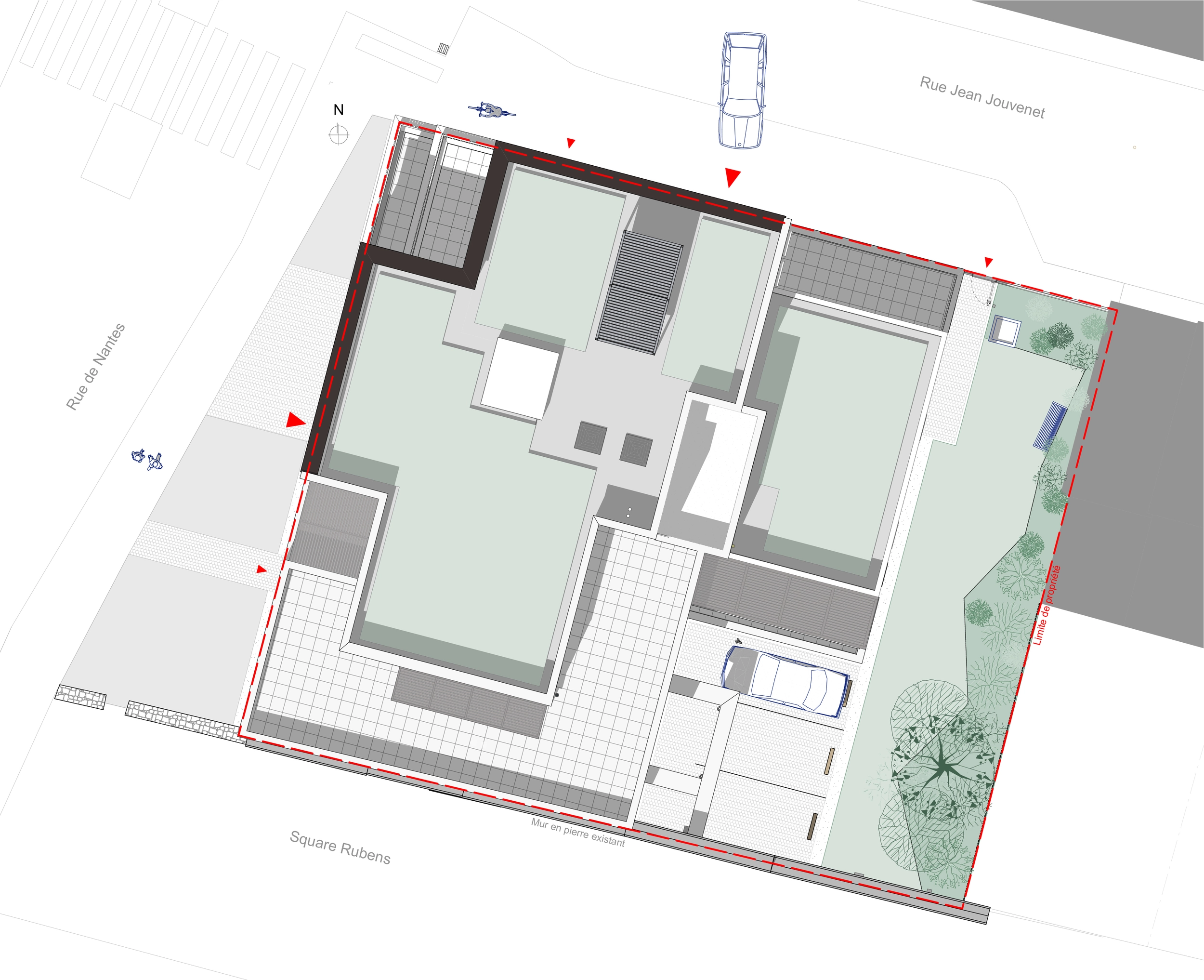
À l’écart du reste de la ZAC Madeleine, le terrain du projet est situé dans un tissu urbain dense, sur un site très contraint à l’angle des rues de Nantes et Jean Jouvenet. Il est bordé à l’est par une mitoyenneté et au sud par un mur en pierre à préserver.

La volumétrie du projet traduit deux intentions fortes. La première, celle de marquer l’angle largement visible depuis la rue de Nantes et axe d’entrée de ville très fréquenté. La seconde, celle d’opérer un épannelage et une mise à distance vers les maisons en bande de la rue Jean Jouvenet.

Le bâtiment s’élève donc en R+5 à l’ouest et en R+3 côté maisons. Une faille végétale est installée en mitoyenneté. Elle offre une respiration et un jardin partagé permettant d’accueillir la biodiversité (végétation et nichoirs à oiseaux) et d’infiltrer les eaux pluviales à la parcelle.

Le RDC est consacré aux espaces communs et au stationnement des voitures. Dans les étages, un noyau central distribue les logements doublement orientés avec des espaces extérieurs généreux.

+

Au sud, la façade se pose à l’aplomb du mur en schiste existant, elle abrite des balcons protégés pour le confort d’été. Un travail d’étude a été mené avec le BET structure et l’entreprise de gros-œuvre pour pouvoir s’implanter au-dessus du mur sans qu’il ne soit porteur de la façade et assurer sa pérennité.

Le projet est l’occasion de mettre en place de la FOB (façade ossature bois) en façade nord et ouest. Cet angle est travaillé en détail comme une boîte tout en bois, ossature, bardage, garde-corps, et s’affirme comme un signal fort qui fait l’identité du bâtiment sur la rue.

Détail de la Façade Ossature Bois (FOB)
Etage courant

Photos de chantier